
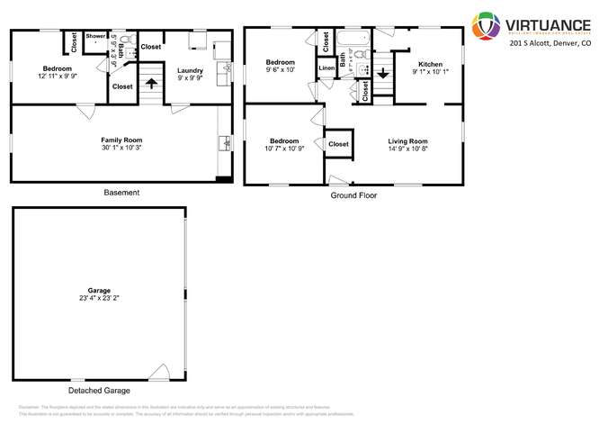
Come get this very well cared for ranch on a large corner lot (6750 sq ft). The floor plan on the main level flows well with two nice-sized bedrooms and a full bath that flows into a good-sized family and dining area. The kitchen is updated, but this home also features a new roof on the house and garage, newer windows, new carpet and pad, new floor in the bath, new shower door, and fresh paint. As you walk downstairs, you will notice the unique high ceilings in the basement. The basement could be a nice mother in law or guest suite with access to add a kitchen, and there is also has an additional bedroom (non-conforming) and a 3/4 bath. Don’t miss the massive 2 car garage with extras space for cars in the driveway. You will not be disappointed with this cute home in a hot area of Denver!
| Price: | $350,000 |
| Address: | 201 S Alcott St |
| City: | Denver |
| State: | CO |
| Zip Code: | 80209 |
| MLS: | 2291863 |
| Year Built: | 1951 |
| Square Feet: | 1,364 |
| Lot Square Feet: | 6,750 |
| Bedrooms: | 3 |
| Bathrooms: | 2 |
| Garage: | 2 Car Garage (Detached) |